Hettange-grande
2018-2023
réalisé

Maison de la nature

Maître d’ouvrage : Communauté de Communes de Cattenom et Environs
Coût : 1 402 000 € HT (dont VRD)
Surface : 536 m²


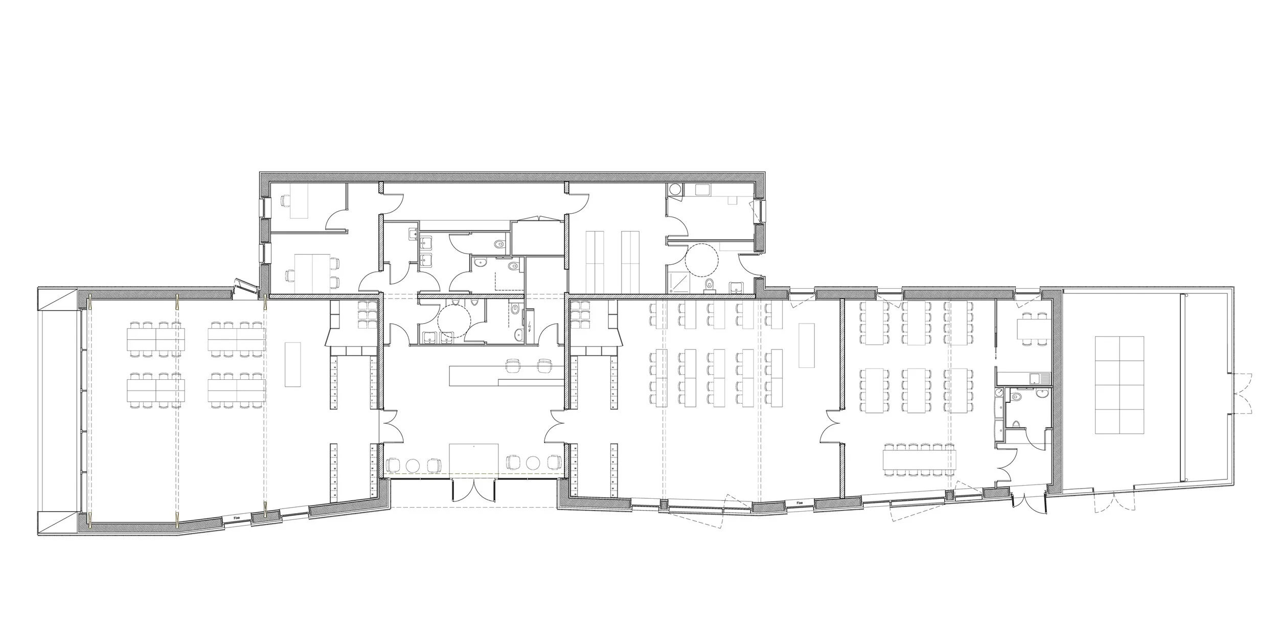
Le bâtiment s’implante à l’entrée de la réserve naturelle nationale de Hettange-Grande. Il est constitué de trois volumes habillés d’un bardage en mélèze et d’une couverture zinc. Un jeu sur les pentes de toiture, le dénivelé du terrain et les biais en façade Sud permet à l’édifice d’apparaître comme un élément signal depuis la route départementale puis de se fondre dans le terrain à l’approche de la réserve naturelle.

Le projet se veut démonstrateur en termes de performances énergétiques et d’emploi de matériaux biosourcés et locaux. Les murs et la charpente sont réalisés en structure bois et isolation en bottes de paille locales, permettant d’atteindre des performances proches du passif. En été, les protections solaires, le déphasage des parois paille et l’inertie des murs de refend permettent d’éviter les surchauffes dans le bâtiment. A l’intérieur le matériaux bois et la structure restent apparents, accompagnés d’enduit terre crue et de sols minces en caoutchouc.