Jury
2022
concours 2e place

 

Maison des associations

Maître d’ouvrage : ville de Jury
Coût : 430 000 € HT
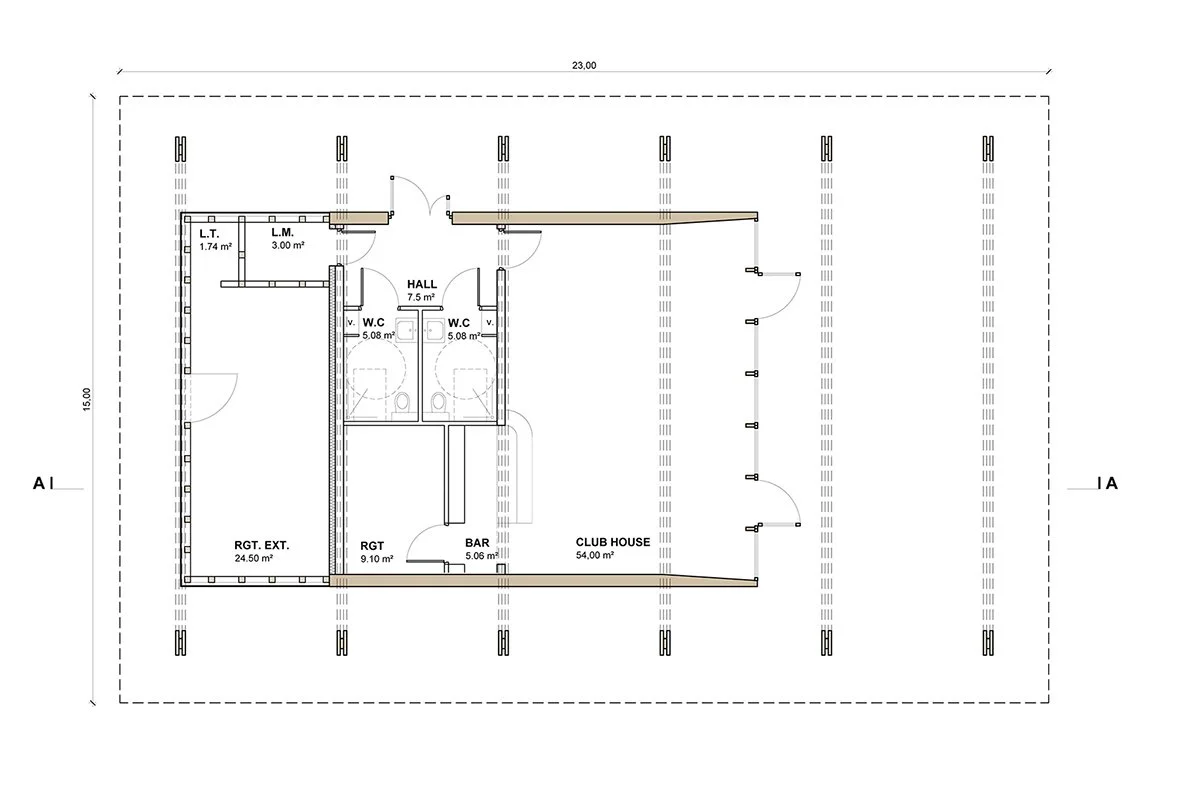
Surface : maison des associations, 115 m², halle couverte 345 m², espaces extérieurs 444 m²

 
 

Le site d’implantation de la maison des associations présente de nombreuses qualités. Grande respiration végétale au cœur du village, plateau sportif, lieu de convivialité, de fêtes communales, de promenade, de jeux...

Nous avons proposé une halle couverte plus généreuse qu’au programme demandé, plus à l’échelle du site et de ses nombreux usages. Le volume chauffé abritant le club house venant ensuite se glisser, avec finesse, sous cette dernière. Ce concept permet à la maison des associations d’apparaître comme un lieu central et fédérateur au cœur du parc tout en limitant les coûts du projet, le volume clos, couvert et chauffé étant optimisé. Le fait que ce dernier soit abrité sous la halle permet par ailleurs de lui donner une réelle légèreté.

La halle couverte se déploie pour partie sur l’esplanade centrale, recouvrant la moitié de la piste de danse existante, conservée dans le projet. La halle profite ainsi de l’ensemble des orientations solaires et vues vers les différentes activités du site. Les baies vitrées du club house s’ouvrent généreusement vers l’esplanade du parc et l’espace couvert par la halle. Le club house peut ainsi se dé­ployer aisément sous la halle et les limites entre intérieur et extérieur, entre le bâti et l’environne­ment paysager sont gommées par une transition progressive (volume couvert et chauffé, volume couvert non chauffé, esplanade, parc) permettant une diversité d’usages et de rapport au paysage.

Les ressources disponibles sur le site et le territoire du projet sont au maximum utilisées. Le réemploi de matériaux existant sur site, l’utilisation et la transformation de bois présents sur le parc, l’utilisation de matériaux sains et biosourcés produits à l’échelle régionale, sont autant de manière de permettre au projet de rayonner sur son territoire et d’en faire un réel outil de développement des filières locales, bénéfique en terme éco­nomique, écologique et social.