Oeting
2022-2025
réalisé

 

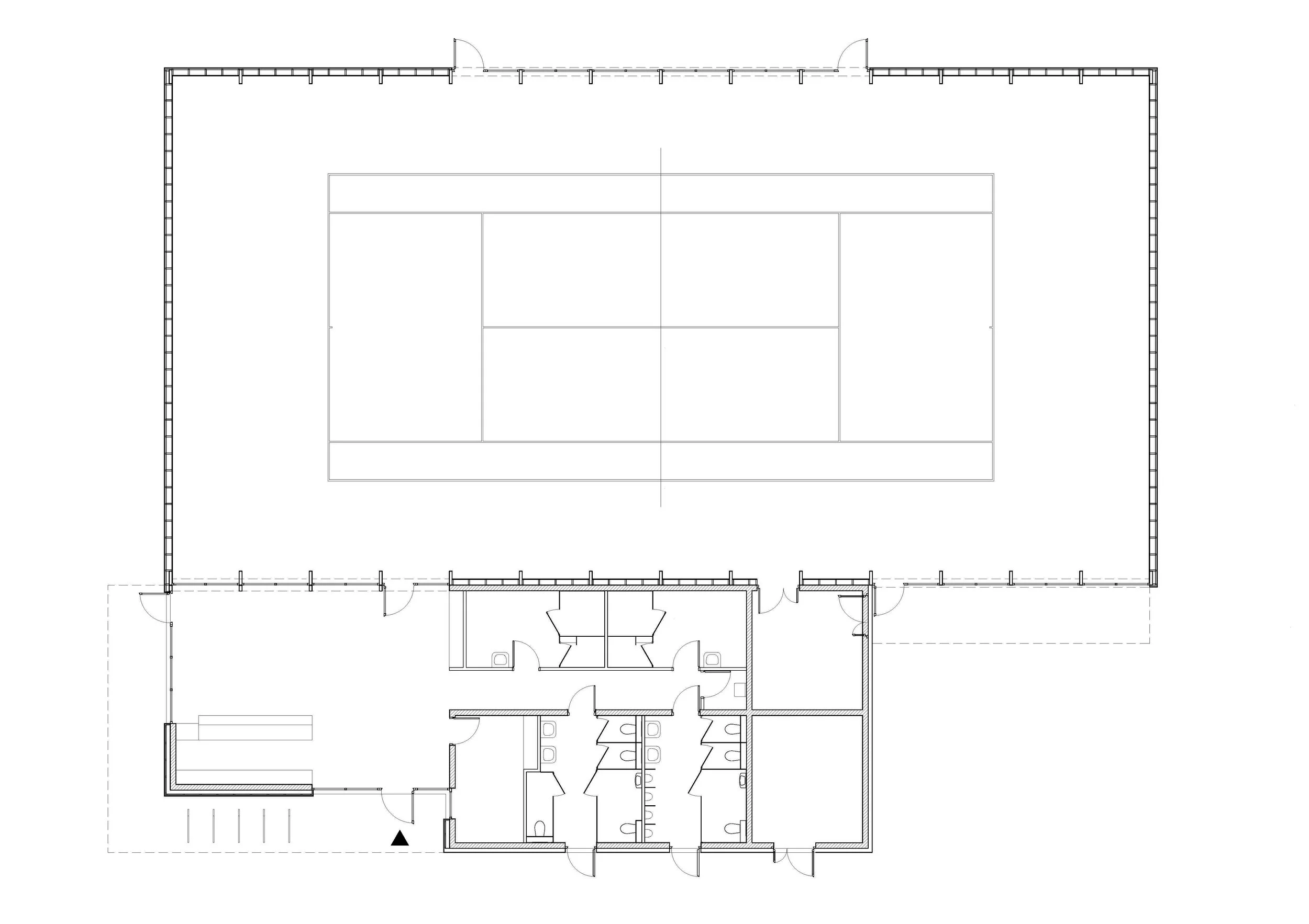
Cours de tennis

Maître d’ouvrage : Commune d’Oeting
Coût : 1 602 000 € HT
Surface : 836 m² + 1596 m² VRD et cours extérieurs

 
 

Le projet comporte un terrain de tennis couvert, deux terrains extérieurs et des locaux dédiés aux associations sportives (club-house, vestiaires...). Il s’implante dans la continuité du village rue d’Oeting, dans un milieu agricole. Afin de bien intégrer la halle de tennis à son environnement, cette dernière est constituée d’un volume sobre bardé de lames de bois verticales. Une composition tripartite des façades permet d’asseoir l’ensemble dans le paysage. Les locaux associatifs s’installent eux dans un volume enduit qui se démarque de la halle et se place à l’intersection de l’ensemble des terrains de tennis. Le club-house s’ouvre généreusement vers l’extérieur et vers le terrain couvert.

La halle de tennis est constituée de portiques bois sous-tendu par des tirants métalliques afin d’optimiser les volumes de bois massif et ainsi diminuer les coûts. Des murs ossatures bois et un isolant bio-sourcé constituent l’enveloppe du bâtiment et permettent d’utiliser ce dernier en période hivernale comme estivale, sans inconfort thermique pour les usagers. Le recours à des matériaux bio-sourcés et locaux permet de réduire fortement l’empreinte carbone du projet.