Volkrange
2022-2025
réalisé

 

Périscolaire

Maître d’ouvrage : Commune de Thionville
Coût : 1 575 000 € HT
Surface : 613 m²

 
 

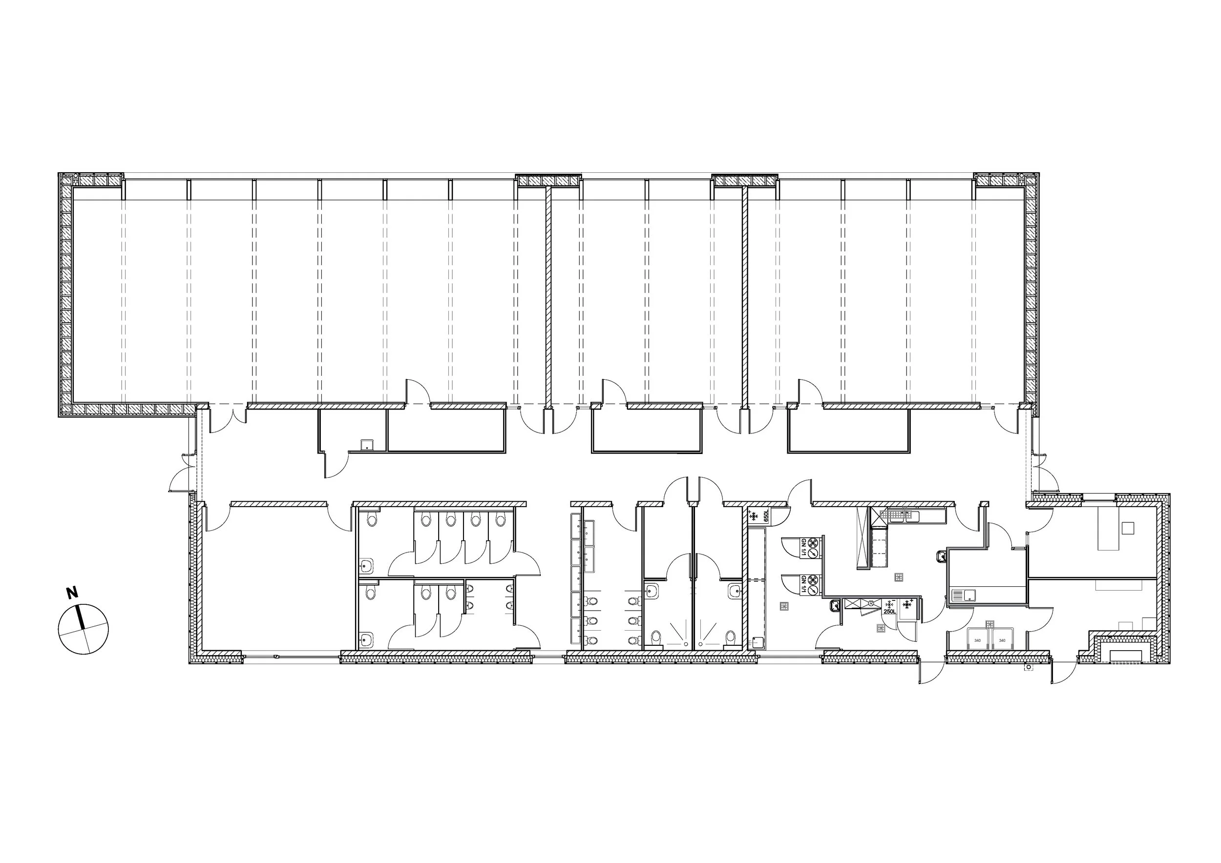
Le périscolaire de Volkrange baigne dans un écrin de verdure et jouit, au Nord, d’une vue exceptionnelle sur les coteaux de la Moselle. L’ensemble des espaces de vie sont orientés vers ces derniers. Un travail sur la coupe permet néanmoins d’y faire pénétrer généreusement la lumière du Sud et les apports solaires.

Grâce à la forme longiligne du bâtiment et le positionnement de son axe de circulation central, l’édifice s’adapte avec délicatesse au fort dénivelé du terrain naturel. La pente de la couverture zinc s’inscrit dans la continuité de la déclivité du coteau permettant ainsi une intégration harmonieuse dans le paysage.

Les matériaux de façades font écho au patrimoine architectural historique environnant et sont adaptés à ce site paysager. Le volume principal est constitué de murs ossatures bois avec une isolation paille locale. Le système constructif et les équipements très performants permettent au bâtiment d’atteindre des performances de type passif, limitant fortement les coûts d’exploitation et de maintenance tout en apportant plus de confort pour les usagers. A l’intérieur, le parti-pris est de donner à voir les éléments de structure bois et d’y coordonner le mobilier intégré afin d’apporter une chaleur et une authenticité à l’ensemble des espaces.